
數控花鍵軸銑床主要是用來滾銑花鍵及齒輪,是一種用于加工花鍵軸的機床。花鍵軸是機械傳動中的重要部件,它的軸上有多個鍵槽,這些鍵槽均勻分布在軸的圓周上,和花鍵套配合可以傳遞扭矩。數控花鍵軸銑床通過數控系統控制刀具的運動,能夠精確地在軸類零件表面加工出花鍵的形狀。
主要應用于以下領域范圍:
1.汽車制造領域
2.機械裝備制造業
3.航空航天工業
4.船舶工業
近日,上海鞍提仕收到來自土耳其的一家拖拉機制造商的詢價,他們需要一臺數控花鍵軸銑床來加工他們的拖拉機變速器,以及汽車的驅動軸中的花鍵軸。通過客戶的參數信息,以及產品圖紙,我們向客戶推薦了我們的YK6212數控花鍵軸銑床.
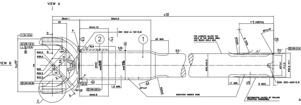
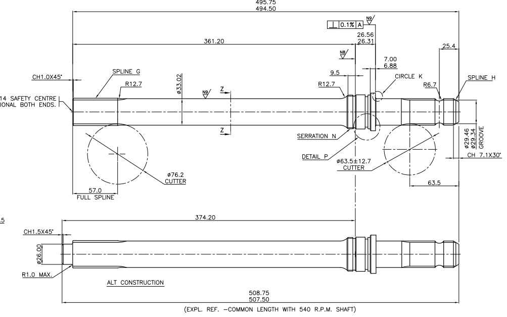
客戶部分圖紙信息:
![]() |
![]() |
![]() |
YK6212數控花鍵軸銑床適用于汽車、拖拉機、齒輪加工等相關機械制造行業,是成批量的花鍵、齒輪零件生產的高效率機床,適宜在風冷條件下,進行工件的高速/高效干式切削,并附帶濕切的冷卻油路,可根據刀具與生產工藝需要進行選擇使用。
| 機器參數信息 | YK6212數控花鍵軸銑床 |
| 最大加工直徑 | φ125mm |
| 最大加工長度 | 900 mm |
| 最大加工模數 | 3mm |
| 加工齒數 | 6-100 |
| 最大工件長度 | 1000mm |
| 機床中心高 | 195mm |
| 刀具中心與工件中心距 | 40-150mm |
| 最大安裝滾刀規格 | φ130 × 115mm |
| 刀桿直徑 | φ22、φ27、φ32mm |
| 滾刀轉速范圍(無級 | 60~600 r/min |
| 銑頭調整角 | ±40° |
| 最大竄刀量 | 100 mm |
| 竄刀量 | 0.18 mm/r |
| 尾座頂尖最大伸出距離 | 40mm |
此型號機器可以完美滿足客戶加工需求,滾銑直齒花鍵軸、直/斜齒圓柱齒輪類工件。也可滾銑聯軸齒輪和花鍵,并可加工臺階齒輪和鼓型齒輪。本機具有較寬廣的滾刀變速范圍:從60-600轉無級可調,可以成倍地提高切削效率。機床采用5軸廣州數控設備有限公司數控系統,實現機床三軸聯動。
如果您有類似的需求,歡迎咨詢上海鞍提仕:contact@antsmachine.com,我們不僅有數控花鍵軸銑床,高效高精度蝸桿砂輪磨齒機,成型砂輪磨齒機,高效滾齒機,還有高效車齒機,我們的技術團隊一定能夠為您匹配出最適合您的技術解決方案。







獲取所需的產品報價
給出詳細的要求有助于獲得更匹配的定制解決方案。 謝謝您的耐心。 我們將在 1 小時內回復您,請注意查收您的電子郵件。